
1.強制循環蒸發器簡述
強制循環蒸發器是依靠外加力循環泵使液體進行循環。它的加熱室有臥式和立式兩種結構,液體循環速度大小由泵調節。強制循環蒸發器可分單效、雙效、三效、四效及多效強制循環蒸發器。強制循環蒸發器真空濃縮設備是我公司開發研制的高效節能濃縮設備,該設備在真空低溫條件下運作,具有料液流速快、蒸發快、不易結垢等特性。蒸發器根據分離室循環料液進出口的位置不同,它又可以分為正循環強制蒸發器及逆循環強制蒸發器,循環料液進口位置在出口位置上部的稱為正循環,反之為逆循環。逆循環強制蒸發器具有更多優點,是依靠外加力——循環泵使液體進行循環。
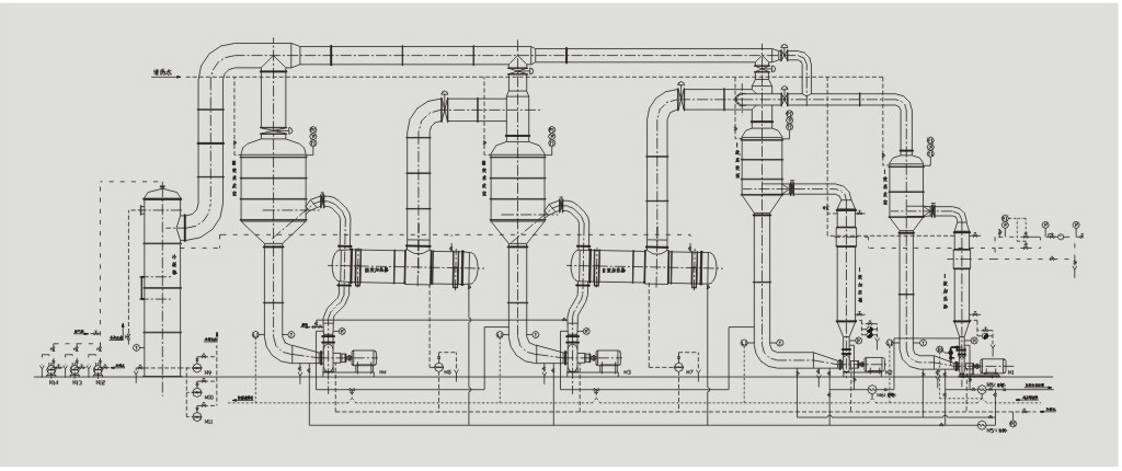
2.強制循環蒸發器的系統結構組成結構:各效蒸發器、各效分離器、冷凝器、循環泵、效間泵、真空及排水系統、操作平臺、電器儀表控制柜及閥門、管路等系統組成。
3.強制循環蒸發器關鍵部件說明c.加熱室內設置特殊化的裝置,有效克服蒸發管的振動并延長蒸汽停留時間有利于傳熱。
d.可排放加熱室內不凝性氣體。
2).蒸發分離結晶室:蒸發室為直立筒體,下部為錐形底以利晶漿排出。二次蒸汽由頂部排出,經除沫器除沫后進入汽液分離器進入冷凝器,蒸發室錐形底部與循環泵連接。5.強制循環蒸發器的適用范圍:該蒸發器廣泛應用在處理粘性、析出結晶、容易結垢或濃縮程度較高的溶液,尤其在真空條件下操作時,其適用性很突出。我公司生產的強制循環蒸發器在氯化鈉、硫酸銨、硫酸鎂、硫酸鋅、硫酸鈉、亞硫酸鈉、葡萄糖酸鈉、氯化鈷、古龍酸、硫化堿等物料的蒸發結晶操作中得到廣泛應用。
強制循環蒸發器示意圖:
Copyright © 2018 常州市天辰環保科技有限公司 [官網] 蘇ICP備18037641號 技術支持:常州網絡公司-江蘇東網科技 [管理后臺]
